Bifamiliare in vendita

Nichelino, Via Colombetto - Giusti
€ 256.000
Prezzo aggiornato
7 locali 7 locali
200 Mq 200 Mq
3 bagni 3 bagni

Bifamiliare in vendita

Nichelino, Via Colombetto - Giusti

Descrizione annuncio

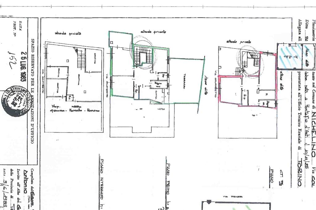
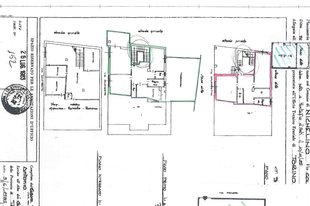
Nel comune di Nichelino, nella tranquilla località di Giusti, è disponibile una spaziosa bifamiliare in vendita. Questa proprietà signorile, costruita nel 1970, si estende su una superficie di 200 mq distribuiti su più livelli, offrendo ampi spazi per ogni esigenza abitativa.

La casa è disposta su due piani:

PT: alloggio bilocale di 70mq, composto da un ampio ingresso, camera matrimoniale, soggiorno con cucina a vista, bagno, ripostiglio ed un ulteriore locale deposito.

1P: ampio ingresso che disimpegna perfettamente le stanze, salotto dotato del primo terrazzo, camera da letto, cameretta, doppi servizi, cucina con annesso terrazzo di 45mq e ripostiglio.

Un'ampia scala padronale divide internamente i due alloggi, soluzione perfetta per chi cerca due alloggi separati o anche un'unica villa unifamiliare.

Compresi nel prezzo 3 box auto singoli.

Mostra tutto

Nelle vicinanze

Trasporto pubblico Trasporto pubblico
Bengasi
Bengasi
2,6 Km
Nichelino
Nichelino
1,1 Km
Moncalieri Sangone
Moncalieri Sangone
1,2 Km
Colombetto
Colombetto
180 m
Mameli
Mameli
340 m
Ricariche auto elettriche Ricariche auto elettriche
Nichelino Cernobyl | EnelX
340 m
Nichelino Kennedy | EnelX
390 m
Nichelino Via Torino | EnelX Fast
650 m
Parcheggio Peppino Impastato NICHELINO | ENELX
800 m
Municipio di Nichelino | EnelX
840 m
Scuole Scuole
Materna Anna Frank
90 m
Elementare Don Milani
340 m
Scuola Media Martiri della Resistenza
420 m
Elementare Cesare Pavese
500 m
Materna Rodari
590 m
Farmacia Farmacia
Farmacia Largo Giusti
160 m
Farmacia Salus
350 m
Farmacia San Quirico
610 m
Farmacia Dallocchio
700 m
Farmacia Armonia
700 m
Ospedali Ospedali
Ospedale Santa Croce
2,8 Km
Supermercati Supermercati
U2 SUPERMERCATI
660 m
Coop
1,6 Km
Ekom
1,7 Km
Esselunga
1,8 Km
Lidl
2,0 Km
Negozi Negozi
Negozi
1,2 Km
FmGroup
1,9 Km
Intimo Corinne
2,5 Km
Vulpio Andrea
2,6 Km
La Terra di Mezzo
2,6 Km
Bar Bar
bar roma
1,2 Km
Centro Comitato Castello
1,5 Km
SARA S.a.S.
1,6 Km
Bar
1,8 Km
Ristoranti Ristoranti
Ristoranti
600 m
Ristorante Cinese Corona di Giada
970 m
Acqua farina e sale
1,3 Km
Inter Wok Sushi
1,6 Km
Pizzeria Roma 4
1,9 Km
Mostra tutto

Caratteristiche

Rif.:
61176742
Piano:
Su più livelli di 1
Totale piani:
1
Box:
3
Balconi:
1
Terrazzi:
2
Mostra tutto
Prezzo Prezzo
€ 256.000
Rata mutuo Rata mutuo
€ 1.216 / mese
Proponi il tuo prezzoProponi il tuo prezzo

Altre caratteristiche

Classe Energetica

F
F
F
F
F
F
F
F
F
EP globale non rinnovabile:
221.45 kW h/m² anno
EP globale rinnovabile:
1.41 kW h/m² anno
EP invernale del fabbricato:
EP estiva del fabbricato:
Anno di costruzione:
1970
Riscaldamento:
Autonomo
Tipo impianto:
A radiatori
Tipo alimentazione:
Metano

Prezzo ridotto di €1 (4%%)

Ti interessa visionare l'immobile?

Fissa un appuntamento  Fissa un appuntamento

Richiedi informazioni

Clicca su Leggi per aprire l'informativa
* Questi campi sono obbligatori

Calcola il tuo mutuo

Semplice e senza impegno
Anticipo

( % )
Mutuo

( % )

pochi semplici passi

inserisci i tuoi dati
Questionario completato
Grazie per aver richiesto un appuntamento senza impegno con un nostro Consulente del Credito e Assicurativo.

Hai inserito correttamente tutti i dati necessari e a breve riceverai una e-mail con un link da convalidare per inviare i tuoi dati.
Affiliato
Studio Gen Sas
Via Torino, 194 10042 Nichelino (TO)

Il nostro staff


  • Sebastiano Luca Avveduto
    Affiliato

  • Marco Rafti
    Responsabile

  • Giada Avveduto
    Coordinatrice
Via Torino, 194 10042 Nichelino (TO)
Zona: Nichelino - Zona Municipio - Castello
Mostra su mappa
Orari: dal lunedì al venerdì dalle09:00 alle12:30 e dalle 15:00 alle 20:00. il sabato chiusura alle 18:00
Affiliato
Studio Gen Sas
Via Torino, 194 10042 Nichelino (TO)

2026 Tecnocasa Franchising S.p.A. - P. IVA 08365160152 - Via Monte Bianco 60/A 20089 Rozzano (MI). Ogni agenzia ha un proprio titolare ed è autonoma. Privacy policy | Policy utilizzo | Cookie policy