Villa a schiera in vendita

Nichelino, Villa Via Meucci - Oltre Stazione
Informazioni in agenzia
5 locali 5 locali
120 Mq 120 Mq
2 bagni 2 bagni

Villa a schiera in vendita

Nichelino, Villa Via Meucci - Oltre Stazione

Descrizione annuncio

Tecnocasa Studio Gen S. a. s propone In Vendita: Nuova Costruzione

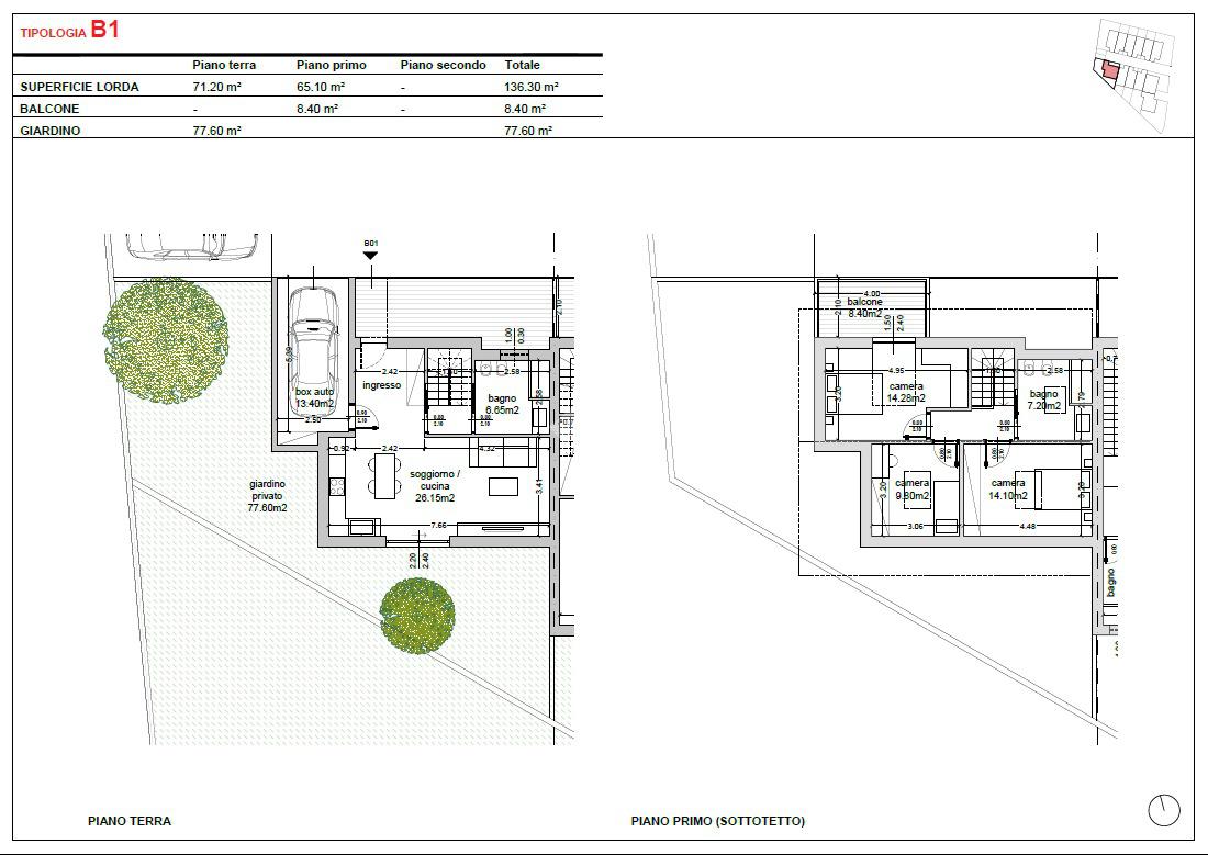
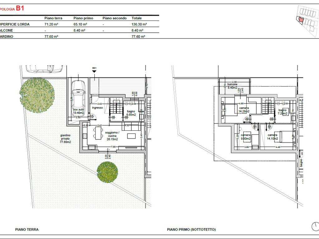
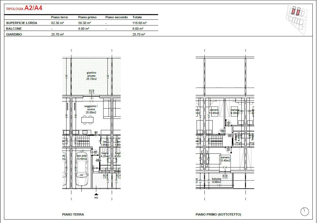
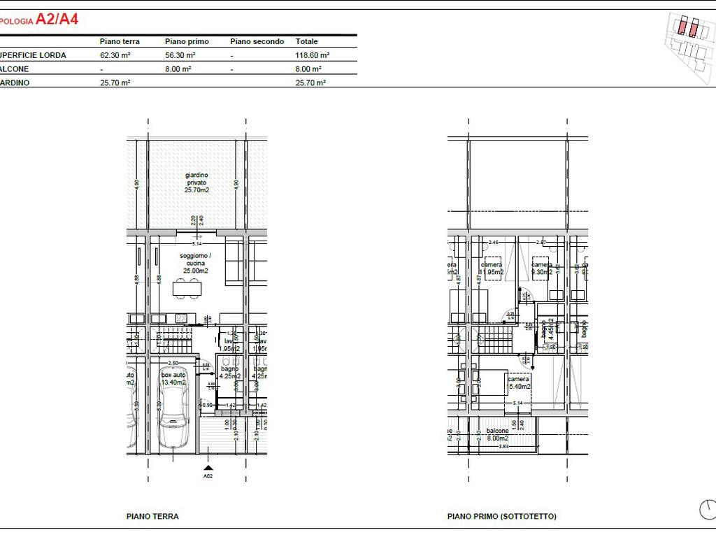
Scopri il tuo nuovo rifugio nel cuore di Nichelino (zona Stazione) offre un'opportunità unica. Case semi indipendenti, (A PARTIRE DA 319.000 Euro) dotate di giardino privati per godere dei momenti di relax all'aria aperta. Con una superficie commerciale di c. a. 120 m². con box auto, progettata per garantire il massimo comfort e funzionalità.

Gli interni sono completamente nuovi, con possibilità di personalizzarli e offrono un ampio capitolato per la scelta dei materiali, permettendo di personalizzare ogni spazio secondo il proprio gusto. L'unità immobiliari sarà fornite di pompe di calore, riscaldamento a pavimento e pannelli fotovoltaici ad uso privato con batterie di accumulo, l'efficienza energetica è garantita, con una classe energetica A+. Inoltre, c'è la possibilità di accedere a mutui green, rendendo l'acquisto ancora più vantaggioso.

L'unità dispone di 5 locali, 2 bagni, un balcone e un garage privato, L'accesso è adattato per persone con mobilità ridotta, assicurando che tutti possano godere della bellezza di questa nuova costruzione. Non perdere l'occasione di vivere in un ambiente moderno e sostenibile. Contattaci per maggiori informazioni e per prenotare una visita!
inizio lavori 2026.

Mostra tutto

Nelle vicinanze

Trasporto pubblico Trasporto pubblico
Nichelino
Nichelino
530 m
Moncalieri Sangone
Moncalieri Sangone
2,7 Km
Torino N. 278
Torino N. 278
170 m
Torino N.282
Torino N.282
170 m
Ricariche auto elettriche Ricariche auto elettriche
Nichelino Segre | EnelX
650 m
Nichelino Amendola | EnelX
980 m
Municipio di Nichelino | EnelX
1,1 Km
Nichelino Via Torino | EnelX
1,1 Km
Nichelino Kennedy | EnelX
1,2 Km
Scuole Scuole
Elementare Papa Giovanni XXIII
210 m
Istituto Comprensivo IV
920 m
Elementare Marco Polo
1,1 Km
Elementare Don Milani
1,2 Km
Elementare Cesare Pavese
1,3 Km
Farmacia Farmacia
Farmacia
630 m
Farmacia Della Stazione
670 m
Farmacia Dallocchio
1,2 Km
Farmacia Largo Giusti
1,3 Km
Farmacia Salus
1,6 Km
Supermercati Supermercati
Coop
1,0 Km
U2 SUPERMERCATI
1,3 Km
Bennet
1,5 Km
Ekom
1,6 Km
Lidl
1,7 Km
Negozi Negozi
Kiabi
1,5 Km
Intimo Corinne
1,9 Km
Conbipel
2,3 Km
Negozi
2,4 Km
OVS
2,5 Km
Bar Bar
Centro Comitato Castello
900 m
SARA S.a.S.
1,6 Km
bar roma
1,8 Km
Bar
2,1 Km
Caffè Villa Reale
2,9 Km
Ristoranti Ristoranti
Ristoranti
710 m
RoadHouse Nichelino
1,4 Km
Inter Wok Sushi
1,7 Km
Ristorante Cinese Corona di Giada
2,1 Km
Churrascaria
2,4 Km
Mostra tutto

Caratteristiche

Rif.:
61120932
Piano:
Su più livelli di 1
Totale piani:
1
Box:
1
Balconi:
4
Camere da letto:
3
Mostra tutto
Prezzo Prezzo
Informazioni in agenzia
Proponi il tuo prezzoProponi il tuo prezzo

Classe Energetica

Questo immobile è esente da classe energetica
Riscaldamento:
Autonomo
Tipo impianto:
A pavimento
Tipo alimentazione:
Metano

Ti interessa visionare l'immobile?

Fissa un appuntamento  Fissa un appuntamento

Richiedi informazioni

Clicca su Leggi per aprire l'informativa
* Questi campi sono obbligatori
Affiliato
Studio Gen Sas
Via Torino, 194 10042 Nichelino (TO)

Il nostro staff


  • Sebastiano Luca Avveduto
    Affiliato

  • Marco Rafti
    Responsabile

  • Giada Avveduto
    Coordinatrice
Via Torino, 194 10042 Nichelino (TO)
Zona: Nichelino - Zona Municipio - Castello
Mostra su mappa
Orari: dal lunedì al venerdì dalle09:00 alle12:30 e dalle 15:00 alle 20:00. il sabato chiusura alle 18:00
Affiliato
Studio Gen Sas
Via Torino, 194 10042 Nichelino (TO)

2026 Tecnocasa Franchising S.p.A. - P. IVA 08365160152 - Via Monte Bianco 60/A 20089 Rozzano (MI). Ogni agenzia ha un proprio titolare ed è autonoma. Privacy policy | Policy utilizzo | Cookie policy